高齢者を対象にした賃貸住宅です。現在は、バリアフリー構造の「サービス付き高齢者向け住宅」に一本化されています。
ヘーベルVillage府中若松
東京都 府中市若松町1-25-29地図を見る
京王線 多磨霊園駅 徒歩6分
| 入居時 |
51 万円 〜 70.9 万円 |
|
|---|---|---|
| 月額 |
12.3 万円 〜 16.2 万円 |
|
| 事業者名 | 事業者名 |
株式会社イチイ |
| 条件 |
|
5室以上 空きあり
最新の空き状況はお問い合わせください。
無料でお手伝いいたします。
ヘーベルVillage府中若松の入居金・月額費用
プラン
居室タイプ
広さ
入居時費用
月額合計
内訳
A
45.03㎡~60.09㎡
510,100円~709,000円
123,000円~162,000円
入居時にかかる費用
| 入居一時金 | 300,700円~421,600円 |
|---|---|
| その他(使途) | 敷金:194,000円~272,000円 火災保険料:15,400円 |
月額利用料
| 賃料 | 97,000円~136,000円 |
|---|---|
| 管理費 | 26,000円 |
ヘーベルVillage府中若松の入居条件
-
自立
-
要支援1
要支援2
-
要介護1
要介護2
要介護3
要介護4
要介護5
- 認知症の状態にある方
ヘーベルVillage府中若松の施設概要
| 事業者名 | 株式会社イチイ | ||
|---|---|---|---|
| 類型 |
高齢者専用賃貸住宅 |
開設年月日 | 2022年04月23日 |
| 総居室・戸数 | 9 室 | ||
| 居住の権利形態 | 建物賃貸借方式 |
支払い方法 | 月払い方式 |
|---|
| 土地の権利形態 | 非所有 | 敷地面積 | 331.28㎡ |
|---|---|---|---|
| 建物の権利形態 | 非所有 | 延床面積 | 573.09㎡ |
| 建物の構造 | 鉄骨ALC造 | ||
こだわりの特長
-
夫婦同室可
夫婦・兄弟姉妹など二人でのご入居が可能な居室がある施設
-
居室にトイレ付
各部屋にトイレがある施設
-
居室に洗面台付き
各部屋に洗面台がある施設
-
最寄り駅から徒歩圏内
最寄駅から徒歩圏内にある施設
-
居室にキッチン付
各部屋にキッチンがある施設
-
低価格
入居時費用100万円以下かつ月額費用20万円以下の施設
-
居室にバス付
各部屋に浴室またはシャワールームがある施設
居室内設備
-
温水洗浄機能付きトイレ
-
キッチン
-
化粧洗面台
-
浴室
-
エアコン
-
収納棚
-
ナースコール
コート掛け、玄関収納、自動火災報知機、洗濯機置き場、ベランダ物干しフック、室内物干しフック、録画機能付テレビドアホン ※浴室は乾燥暖房機能付
共用施設・設備
オートロック、共用エレベーター、共用コミュニティースペース、AED
【記載内容について】
当サイトに記載されている内容は、現状とは異なる場合がございます。
最新の情報につきましては、上記電話番号までお問い合わせください。(さがしっくす事務局)
ヘーベルVillage府中若松の医療・職員体制
詳細はお問い合わせください
ヘーベルVillage府中若松の特長写真
-
.jpg?v=20220202)
外観
続きを読む -
.jpg?v=20220202)
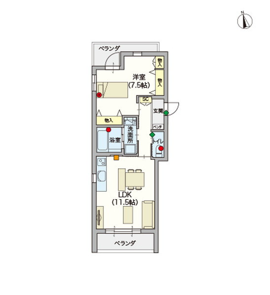
居室間取りA
続きを読む -
.jpg?v=20220202)
居室間取りB
続きを読む -
.jpg?v=20220202)
居室間取りC
続きを読む -
.jpg?v=20220202)
居室間取りD
続きを読む -
.jpg?v=20220202)
居室間取りE
続きを読む -
.jpg?v=20220202)
居室間取りF
続きを読む -
.jpg?v=20220202)
居室間取りG
続きを読む
.jpg?v=20220202)
外観
.jpg?v=20220202)
居室間取りA
.jpg?v=20220202)
居室間取りB
.jpg?v=20220202)
居室間取りC
.jpg?v=20220202)
居室間取りD
.jpg?v=20220202)
居室間取りE
.jpg?v=20220202)
居室間取りF
.jpg?v=20220202)
居室間取りG
特長
特長
【 ZEH-M(ゼッチ マンション)対応ヘーベルVillage】
~環境に優しく、経済性、快適性でもメリットがある集合住宅~
高断熱・省エネ・創エネによって、1年間で消費する住宅のエネルギー量が正味(ネット)でおおむねゼロ以下となる住宅のことをZEH(ネット・ゼロ・エネルギー・ハウス)といいます。ZEH-Mは、そのZEH基準を満たした集合住宅のことを指し、環境に優しいだけでなく、経済性、快適性、安心などのメリットがあります。
※1、2階部屋のみ(3階の部屋はZEHーM(売電不可)ではございません)
「ヘーベルVillage府中若松」は、京王線「多磨霊園」駅より徒歩6分、西武多摩川線「白糸台」駅より徒歩9分と2路線が利用可能で、「多磨霊園」駅から「調布」駅までは6分、「新宿」駅まで20分程度で行くことができ都心へのアクセスがよく、京王バスやコミュニティバスもあり充実のライフスタイルが実現します。
ヘーベルVillage府中若松の交通・アクセス
| 住所 | 〒183-0005 東京都府中市若松町1-25-29 |
|---|---|
| 電車 |
京王線 多磨霊園駅 徒歩6分 |