高齢者を対象とした、バリアフリー構造の賃貸住宅です。
SOMPOケア そんぽの家S上新庄東
大阪府 大阪市東淀川区瑞光3-7-6地図を見る
・地下鉄今里線「瑞光四丁目」駅から、徒歩約1分
・私鉄阪急京都本線「上新庄」駅から、徒歩約13分
・高速「摂津南IC」から、車で約12分
| 入居時 |
0 円 |
|
|---|---|---|
| 月額 |
14.5 万円 |
|
| 事業者名 | 事業者名 |
SOMPOケア株式会社 |
| 条件 |
|
最新の空き状況は、問い合わせください。
通話 0120-250-857 受付時間 : 9:00~18:00
(年末年始を除く)
SOMPOケア そんぽの家S上新庄東の入居金・月額費用
プラン
居室タイプ
広さ
入居時費用
月額合計
内訳
A 月払いプラン
全室共通
0円
145,180円(税込)
月額利用料
| 賃料 | 100,000円(非課税) |
|---|---|
| 共益費 | 15,150円(税込) |
| 生活支援サービス費 | 30,030円(税込) |
※その他、介護保険の自己負担費、医療費、消耗品費等は別途発生いたします。
SOMPOケア そんぽの家S上新庄東の入居条件
- 概ね60歳以上の方で、独居が困難な方や介護保険受給認定を受けている方
【自立~要介護5の方】
SOMPOケア そんぽの家S上新庄東の施設概要
| 事業者名 | SOMPOケア株式会社 | ||
|---|---|---|---|
| 類型 |
サービス付き高齢者向け住宅 |
開設年月日 | 2017年03月01日 |
| 総居室・戸数 | 52 戸 | 定員 | 52人 |
| 居住の権利形態 | 建物賃貸借方式 |
支払い方法 | 月払い方式 |
|---|
| 土地の権利形態 | 事業主体非所有 | 敷地面積 | 1,053.49㎡ |
|---|---|---|---|
| 建物の権利形態 | 事業主体非所有 | 延床面積 | 2,262.03㎡ |
| 建物の構造 | 鉄筋コンクリート造4階建 | ||
こだわりの特長
-
居室にトイレ付
各部屋にトイレがある施設
-
ペット可
ペットと一緒のご入居が可能な施設
-
居室に洗面台付き
各部屋に洗面台がある施設
-
最寄り駅から徒歩圏内
最寄駅から徒歩圏内にある施設
-
居室にキッチン付
各部屋にキッチンがある施設
-
低価格
入居時費用100万円以下かつ月額費用20万円以下の施設
-
居室にバス付
各部屋に浴室またはシャワールームがある施設
-
お元気な方
介護の必要がない、自立した生活を送れる方でも入居できる施設
-
入居金0円
入居金0円の料金プランがある施設
-
認知症受け入れ可
認知症の方のご入居が可能な施設
-
ターミナルケア
ご利用者の苦痛の緩和を目的とした、終末期ケアの相談が可能な施設
居室内設備
エアコン、洗面、暖房便座付水洗トイレ、緊急呼出装置、収納、下駄箱、浴室、ミニキッチン、洗濯機スペース、固定電話設置可能、玄関収納椅子
共用施設・設備
冷暖房完備、エレベーター、温水洗浄暖房便座付トイレ、特殊浴室、緊急呼出装置、駐車場(来客用3台)、駐輪場(33台)、原付置場(4台)、オートロック、インターフォン
【記載内容について】
当サイトに記載されている内容は、現状とは異なる場合がございます。
最新の情報につきましては、上記電話番号までお問い合わせください。(さがしっくす事務局)
SOMPOケア そんぽの家S上新庄東の医療・職員体制
詳細はお問い合わせください
SOMPOケア そんぽの家S上新庄東の特長写真
-
.jpg?v=20220202)
外観
続きを読む -
.jpg?v=20220202)
食堂(同タイプの他のそんぽの家S)
続きを読む -
.jpg?v=20220202)
居室(同タイプの他のそんぽの家S)
続きを読む -
.jpg?v=20220202)
居室(同タイプの他のそんぽの家S)
続きを読む -
.jpg?v=20220202)
居室ミニキッチン・玄関(同タイプの他のそんぽの家S)
続きを読む -
.jpg?v=20220202)
居室浴室(同タイプの他のそんぽの家S)
続きを読む -
.jpg?v=20220202)
居室トイレ(同タイプの他のそんぽの家S)
続きを読む -
.jpg?v=20220202)
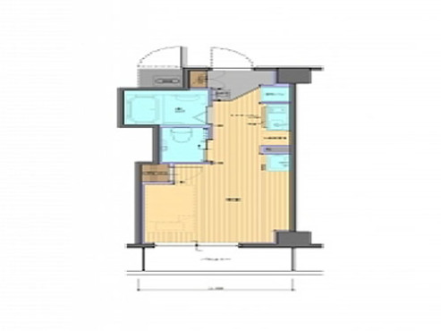
居室イメージ図
続きを読む
.jpg?v=20220202)
外観
.jpg?v=20220202)
食堂(同タイプの他のそんぽの家S)
.jpg?v=20220202)
居室(同タイプの他のそんぽの家S)
.jpg?v=20220202)
居室(同タイプの他のそんぽの家S)
.jpg?v=20220202)
居室ミニキッチン・玄関(同タイプの他のそんぽの家S)
.jpg?v=20220202)
居室浴室(同タイプの他のそんぽの家S)
.jpg?v=20220202)
居室トイレ(同タイプの他のそんぽの家S)
.jpg?v=20220202)
居室イメージ図
特長
特長
ワンルームマンションで暮らすように心地よく自分のペースに合わせて自由に軽やかに生活を楽しめる。
それがサービス付き高齢者向け住宅「SOMPOケア そんぽの家S」です。
【特長1】日々を見守る生活支援サービス
【特長2】万一に備えた安心への配慮
【特長3】自由に選べる介護サービス
◆日々を見守る生活支援サービス
自由度の高い暮らしに安心を添える24時間スタッフ常駐
「そんぽの家S」では、自由度の高い暮らしの中にも確かな安心を感じていただけるよう、
充実した生活支援サービスをご用意。24時間の緊急対応や安否確認など、
建物内の常駐スタッフが日々の暮らしに寄り添います。
◆万一に備えた安心への配慮
もしものときの安全設備
ワンルームマンションのような空間に安全設備をプラス。
浴室の給湯温度制限や緊急呼出装置など、万一の場合に備えた仕様です。
◆自由に選べる介護サービス
ニーズに合わせて選べる「介護サービス」「医療サービス」
心身の状態に合わせて介護サービスを自由に選んで利用できます。
訪問看護や訪問リハビリテーションもニーズに合わせて自由にお選びいただけます。
SOMPOケア そんぽの家S上新庄東の交通・アクセス
| 住所 | 〒533-0005 大阪府大阪市東淀川区瑞光3-7-6 |
|---|---|
| 交通 | ・地下鉄今里線「瑞光四丁目」駅から、徒歩約1分 ・私鉄阪急京都本線「上新庄」駅から、徒歩約13分 ・高速「摂津南IC」から、車で約12分 |