介護保険法で定められた基準を満たし、「特定施設入居者生活介護」の指定を受けた有料老人ホームです。介護や食事などのサービスを受けることができます。
SOMPOケア そんぽの家伊勢原
神奈川県 伊勢原市上粕屋336-1地図を見る
小田急小田原線 伊勢原駅 神奈川中央交通バス 産業能率大学行行き乗車 共済会館入口バス停下車 徒歩2分
| 入居時 |
0 円 |
|
|---|---|---|
| 月額 |
21.1 万円 |
|
| 事業者名 | 事業者名 |
SOMPOケア株式会社 |
| 条件 |
|
1室 空きあり
2025年09月24日時点。 最新の空き状況はお問い合わせください。
通話 0120-250-857 受付時間 : 9:00~18:00
(年末年始を除く)
SOMPOケア そんぽの家伊勢原の入居金・月額費用
プラン
居室タイプ
広さ
入居時費用
月額合計
内訳
A 月払いプラン
全室共通
0円
211,384円(税込)
月額利用料
| 賃料 | 112,000円(非課税) |
|---|---|
| 管理費 | 48,840円(税込) |
| 食費 | 50,544円(税込) |
※その他、介護保険の自己負担費、医療費、消耗品費等は別途発生いたします。
SOMPOケア そんぽの家伊勢原の入居条件
- 介護保険受給対象者でお体の弱い方や寝たきりの方、および認知症の方
【介護度が要支援1~要介護5の方】
SOMPOケア そんぽの家伊勢原の施設概要
| 事業者名 | SOMPOケア株式会社 | ||
|---|---|---|---|
| 類型 |
介護付き有料老人ホーム |
開設年月日 | 2008年11月01日 |
| 総居室・戸数 | 50 室 | 定員 | 50人 |
| 居住の権利形態 | 利用権方式 |
支払い方法 | 月払い方式 |
|---|
| 土地の権利形態 | 事業主体非所有 | 敷地面積 | 2,077㎡ |
|---|---|---|---|
| 建物の権利形態 | 事業主体非所有 | 延床面積 | 2,075.5㎡ |
| 建物の構造 | 鉄骨造 地上3階建 | ||
こだわりの特長
-
居室にトイレ付
各部屋にトイレがある施設
-
介護付き
施設に常駐する介護スタッフがケアを行っている施設
-
居室に洗面台付き
各部屋に洗面台がある施設
-
居室にキッチン付
各部屋にキッチンがある施設
-
低価格
入居時費用100万円以下かつ月額費用20万円以下の施設
-
居室にバス付
各部屋に浴室またはシャワールームがある施設
-
入居金0円
入居金0円の料金プランがある施設
-
認知症受け入れ可
認知症の方のご入居が可能な施設
-
ターミナルケア
ご利用者の苦痛の緩和を目的とした、終末期ケアの相談が可能な施設
居室内設備
洗面、暖房便座付水洗トイレ、ナースコール、収納、下駄箱、浴室、ミニキッチン、洗濯機スペース、固定電話設置可能
共用施設・設備
冷暖房完備、エレベーター、温水洗浄・暖房便座付トイレ、特殊浴室、緊急通報システム、来客者用駐車場(12台可)
【記載内容について】
当サイトに記載されている内容は、現状とは異なる場合がございます。
最新の情報につきましては、上記電話番号までお問い合わせください。(さがしっくす事務局)
SOMPOケア そんぽの家伊勢原の医療・職員体制
職員体制
| 入居者と介護に関わる職員の比率 | 入居者:職員 = 3人 : 1人以上 |
|---|
SOMPOケア そんぽの家伊勢原の特長写真
-
.jpg?v=20220202)
外観
続きを読む -
.jpg?v=20220202)
食堂
続きを読む -
.jpg?v=20220202)
居室
続きを読む -
.jpg?v=20220202)
居室
続きを読む -
.jpg?v=20220202)
居室キッチン(同タイプの他のそんぽの家の写真)
続きを読む -
.jpg?v=20220202)
居室浴室(同タイプの他のそんぽの家の写真)
続きを読む -
.jpg?v=20220202)
緊急通報装置(同タイプの他のそんぽの家の写真)
続きを読む -
.jpg?v=20220202)
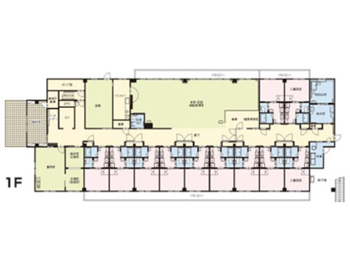
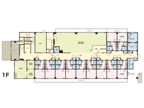
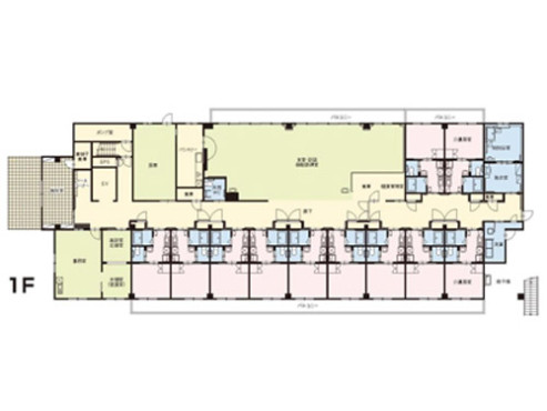
館内平面図
続きを読む -
.jpg?v=20220202)
居室間取り図
続きを読む
.jpg?v=20220202)
外観
.jpg?v=20220202)
食堂
.jpg?v=20220202)
居室
.jpg?v=20220202)
居室
.jpg?v=20220202)
居室キッチン(同タイプの他のそんぽの家の写真)
.jpg?v=20220202)
居室浴室(同タイプの他のそんぽの家の写真)
.jpg?v=20220202)
緊急通報装置(同タイプの他のそんぽの家の写真)
.jpg?v=20220202)
館内平面図
.jpg?v=20220202)
居室間取り図
特長
特長
“ご自宅で過ごす”。その感覚に近い環境を実現するのが、介護付きホーム「SOMPOケア そんぽの家」です。
【特長1】自分らしい生活空間
【特長2】お一人おひとりの状態に適した食事
【特長3】快適と安心を支えるホーム体制
◆自分らしい生活空間
自分の時間を大切にできる多彩なスペース
我が家にいるような暮らしをコンセプトにした居室は、プライバシーに配慮した個室が基本。
自分の時間をお持ちいただくことで、心のゆとりや自発性、自立度の向上にもつながります。
憩いの場となるダイニングは、明るい気分を誘う広々として開放的な空間づくりを大切にしています。
◆お一人おひとりの状態に適した食事
お身体に合わせた食事を安定した品質でリーズナブルに
毎日食べても飽きない「いつもの食事」を、お身体の状態に合わせながらリーズナブルな価格で提供します。和洋中とバラエティに富んだメニューは、ホーム内のキッチンで仕上げるため、
いつも温かい状態。栄養のバランスはもちろん、関東・関西と地域ならではの味付けにもこだわっています。
◆快適と安心を支えるホーム体制
24時間体制で、介護と医療を連携
24時間、介護が必要な方をサポート。
提携医は月2回以上往診し、日々健康管理に努めています。
もちろん、受診は任意です。主治医がいない場合は、ご希望に応じて取次ぎも可能。
緊急時はケアスタッフが主治医に連絡、指示を仰ぐといった、安心して快適に暮らすための連携ができています。
全居室が、プライベートな時間を大切にできる個室仕様。
これまでと変わらず、ありのままの自分で暮らせます。
そして、全てのホームが、前払金0円。
できる限り無理のない料金体系で、安心の暮らしをご提供します。
SOMPOケア そんぽの家伊勢原の交通・アクセス
| 住所 | 〒259-1141 神奈川県伊勢原市上粕屋336-1 |
|---|---|
| バス |
小田急小田原線 伊勢原駅 神奈川中央交通バス 産業能率大学行行き乗車 共済会館入口バス停下車 徒歩2分 |
| その他 | ・東名高速道路「厚木」ICから、国道246号を西へ約5km、「伊勢原」交差点を北へ右折。三差路を右へ約300m進み「峰岸団地入口」を左折。 |