介護保険法で定められた基準を満たし、「特定施設入居者生活介護」の指定を受けた有料老人ホームです。介護や食事などのサービスを受けることができます。
SOMPOケア そんぽの家中村公園
愛知県 名古屋市中村区荒輪井町2-16-1地図を見る
・地下鉄東山線「中村公園」駅下車、徒歩約24分。
・栄、中村公園、中村区役所から名古屋市バス『稲西車庫』方面(栄24、中村13など)で「荒輪井」バス停下車、徒歩約3分。
| 入居時 |
0 円 |
|
|---|---|---|
| 月額 |
20.4 万円 |
|
| 事業者名 | 事業者名 |
SOMPOケア株式会社 |
| 条件 |
|
最新の空き状況は、問い合わせください。
通話 0120-250-857 受付時間 : 9:00~18:00
(年末年始を除く)
SOMPOケア そんぽの家中村公園の入居金・月額費用
プラン
居室タイプ
広さ
入居時費用
月額合計
内訳
A 月払いプラン
全室共通
0円
204,924円(税込)
月額利用料
| 賃料 | 82,000円(非課税) |
|---|---|
| 管理費 | 72,380円(税込) |
| 食費 | 50,544円(税込) |
※その他、介護保険の自己負担費、医療費、消耗品費等は別途発生いたします。
SOMPOケア そんぽの家中村公園の入居条件
- 介護保険受給対象者でお体の弱い方や寝たきりの方、および認知症の方
【介護度が要支援1~要介護5の方】
SOMPOケア そんぽの家中村公園の施設概要
| 事業者名 | SOMPOケア株式会社 | ||
|---|---|---|---|
| 類型 |
介護付き有料老人ホーム |
開設年月日 | 2005年07月01日 |
| 総居室・戸数 | 77 室 | 定員 | 77人 |
| 居住の権利形態 | 利用権方式 |
支払い方法 | 月払い方式 |
|---|
| 土地の権利形態 | 事業主体非所有 | 敷地面積 | 1,574.78㎡ |
|---|---|---|---|
| 建物の権利形態 | 事業主体非所有 | 延床面積 | 2,562.36㎡ |
| 建物の構造 | 鉄骨造 3階建 | ||
こだわりの特長
-
居室にトイレ付
各部屋にトイレがある施設
-
介護付き
施設に常駐する介護スタッフがケアを行っている施設
-
居室に洗面台付き
各部屋に洗面台がある施設
-
個室風呂あり
共用エリアに一人で入れるユニットバスがある施設
-
低価格
入居時費用100万円以下かつ月額費用20万円以下の施設
-
入居金0円
入居金0円の料金プランがある施設
-
認知症受け入れ可
認知症の方のご入居が可能な施設
-
ターミナルケア
ご利用者の苦痛の緩和を目的とした、終末期ケアの相談が可能な施設
居室内設備
洗面、水洗トイレ、ナースコール、収納、固定電話設置可能
共用施設・設備
冷暖房完備、エレベーター、温水洗浄・暖房便座付トイレ、特殊浴室、緊急通報システム、来客者用駐車場(30台可)
【記載内容について】
当サイトに記載されている内容は、現状とは異なる場合がございます。
最新の情報につきましては、上記電話番号までお問い合わせください。(さがしっくす事務局)
SOMPOケア そんぽの家中村公園の医療・職員体制
職員体制
| 入居者と介護に関わる職員の比率 | 入居者:職員 = 3人 : 1人以上 |
|---|
SOMPOケア そんぽの家中村公園の特長写真
-
.jpg?v=20220202)
外観
続きを読む -
.jpg?v=20220202)
居室(同タイプの他のそんぽの家の写真)
続きを読む -
.jpg?v=20220202)
居室(同タイプの他のそんぽの家の写真)
続きを読む -
.jpg?v=20220202)
食堂(同タイプの他のそんぽの家の写真)
続きを読む -
.jpg?v=20220202)
緊急通報装置(同タイプの他のそんぽの家の写真)
続きを読む -
.jpg?v=20220202)
機械浴室(同タイプの他のそんぽの家の写真)
続きを読む -
.jpg?v=20220202)
施設駐車場
続きを読む -
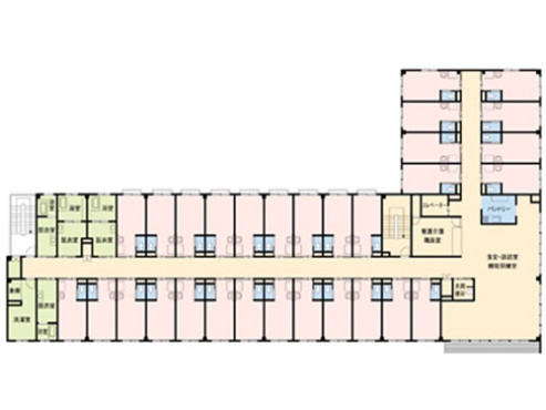
.jpg?v=20220202)
平面図
続きを読む
.jpg?v=20220202)
外観
.jpg?v=20220202)
居室(同タイプの他のそんぽの家の写真)
.jpg?v=20220202)
居室(同タイプの他のそんぽの家の写真)
.jpg?v=20220202)
食堂(同タイプの他のそんぽの家の写真)
.jpg?v=20220202)
緊急通報装置(同タイプの他のそんぽの家の写真)
.jpg?v=20220202)
機械浴室(同タイプの他のそんぽの家の写真)
.jpg?v=20220202)
施設駐車場
.jpg?v=20220202)
平面図
特長
特長
“ご自宅で過ごす”。その感覚に近い環境を実現するのが、介護付きホーム「SOMPOケア そんぽの家」です。
【特長1】自分らしい生活空間
【特長2】お一人おひとりの状態に適した食事
【特長3】快適と安心を支えるホーム体制
◆自分らしい生活空間
自分の時間を大切にできる多彩なスペース
我が家にいるような暮らしをコンセプトにした居室は、プライバシーに配慮した個室が基本。
自分の時間をお持ちいただくことで、心のゆとりや自発性、自立度の向上にもつながります。
憩いの場となるダイニングは、明るい気分を誘う広々として開放的な空間づくりを大切にしています。
◆お一人おひとりの状態に適した食事
お身体に合わせた食事を安定した品質でリーズナブルに
毎日食べても飽きない「いつもの食事」を、お身体の状態に合わせながらリーズナブルな価格で提供します。和洋中とバラエティに富んだメニューは、ホーム内のキッチンで仕上げるため、
いつも温かい状態。栄養のバランスはもちろん、関東・関西と地域ならではの味付けにもこだわっています。
◆快適と安心を支えるホーム体制
24時間体制で、介護と医療を連携
24時間、介護が必要な方をサポート。
提携医は月2回以上往診し、日々健康管理に努めています。
もちろん、受診は任意です。主治医がいない場合は、ご希望に応じて取次ぎも可能。
緊急時はケアスタッフが主治医に連絡、指示を仰ぐといった、安心して快適に暮らすための連携ができています。
全居室が、プライベートな時間を大切にできる個室仕様。
これまでと変わらず、ありのままの自分で暮らせます。
そして、全てのホームが、前払金0円。
できる限り無理のない料金体系で、安心の暮らしをご提供します。
SOMPOケア そんぽの家中村公園の交通・アクセス
| 住所 | 〒453-0848 愛知県名古屋市中村区荒輪井町2-16-1 |
|---|---|
| 交通 | ・地下鉄東山線「中村公園」駅下車、徒歩約24分。 ・栄、中村公園、中村区役所から名古屋市バス『稲西車庫』方面(栄24、中村13など)で「荒輪井」バス停下車、徒歩約3分。 |